Leave a Message

Thank you for your message. We will be in touch with you shortly.

Search Properties
121 Liberty Bell Drive
121 Liberty Bell Drive
121 Liberty Bell Drive
SEE ALL PHOTOS
121 Liberty Bell Drive
121 Liberty Bell Drive
121 Liberty Bell Drive
Sold

121 Liberty Bell Drive

121 Liberty Bell Drive, Cartersville, GA 30121

$330,990
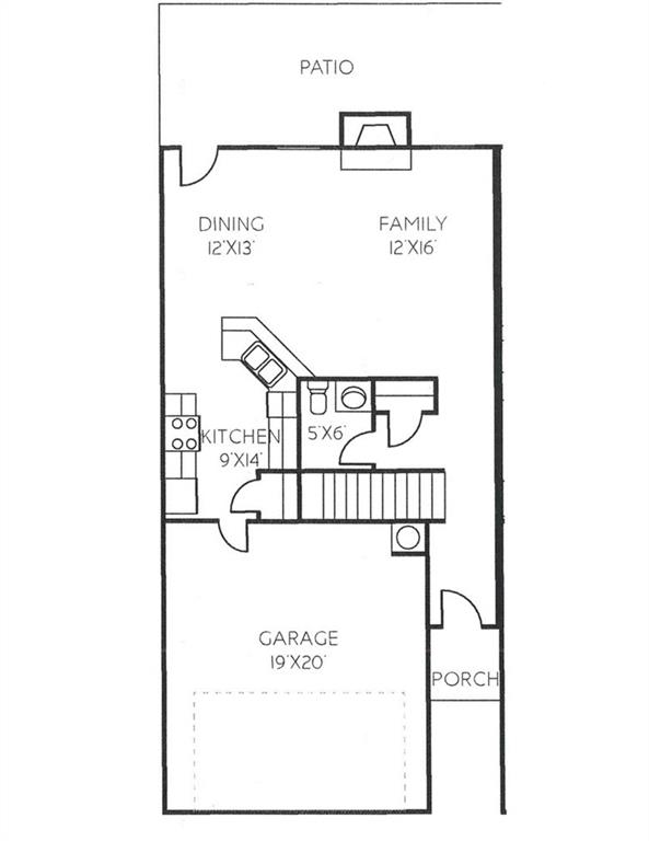
New Construction conveniently located off Highway 20 and close to shopping, dining, businesses and all that Cartersville has to offer. The Bradley floor plan has a foyer entry revealing the open concept floor plan with the spacious living room & cozy fireplace, dining area, and Kitchen with stone counter tops, stainless steel appliances, and shaker style cabinets with soft close doors and drawers. Kitchen has open view to living and dining areas, also on main level is the powder room. On the upper level you'll find the master ensuite and two additional spacious bedrooms, full bath, linen closet and laundry in the hall. The oversized master bedroom offers walk in closet, master bath with double vanity, separate tub/ shower. All homes have carriage style garage doors, landscaped yards and patios in the back yard to enjoy outside. $4000 Preferred Lender Credit! ESTIMATED COMPLETION DATE: End of August.

3
beds

3
baths

1,618 Sq.Ft. LIVING AREA

4,791.6 Sq.Ft. lot

Tina Sui

Tina Sui

Features & Amenities

Interior

  • total bedrooms3
  • Total bathrooms3
  • full bathrooms2
  • half bathroom1
  • Laundry room Laundry Room, Upper Level
  • Flooring Carpet, Laminate, Vinyl
  • Fireplace Family Room
  • APPLIANCES Dishwasher, Electric Range, Electric Water Heater
  • other interior Features Crown Molding, Double Vanity, Entrance Foyer, High Ceilings 9 ft Main, Walk-In Closet(s)

Area & Lot

  • Status Sold
  • Living Area1,618 Sq.Ft.
  • Total Area1,618 Sq.Ft.
  • Lot Area4,791.6 Sq.Ft.
  • MLS® ID7344802
  • TypeResidential
  • YEAR BUILT2024
  • Architecture StylesCraftsman, Traditional
  • Water FrontageNone
  • View DescriptionRural
  • Elementary SchoolCloverleaf
  • Middle SchoolRed Top
  • High SchoolCass

Exterior

  • STORIES2
  • Garage Space2.0
  • water SourcePublic
  • utilitiesCable Available, Electricity Available, Phone Available, Sewer Available, Underground Utilities, Water Available
  • PoolNone
  • roofComposition
  • lot featuresBack Yard, Front Yard
  • parkingAttached, Garage
  • HEAT TYPEElectric
  • AIR CONDITIONINGCeiling Fan(s), Central Air
  • sewerPublic Sewer
  • SubstructureNone
  • Disability FeaturesNone
  • security FeaturesSmoke Detector(s)
  • Green featuresNone
  • other exterior FeaturesNone

Financial

  • Sales Price$330,990
  • HOA $450/yr

Let’s Work Together

Whether you’re buying, selling, or investing, we bring the knowledge, network, and hustle to help you succeed—and we speak your language, in fluent English and Mandarin. Your goals are our mission. Let’s get started.

Follow Me on Instagram